Bean House
Featured

Bean House

  • CLIENT:: Narara Eco Village

Welcome to The Bean House, nestled within the Narara eco village, where we showcase some great examples of beautiful, natural and sustainable building design. Inspired by the timeless charm of 'Cob houses,' our client embarked on a journey with us, driven by a passion for organic forms, health benefits, and ecological ethics inherent in natural building. Together, we have meticulously crafted something truly unique for their family to grow and enjoy for many years to come.

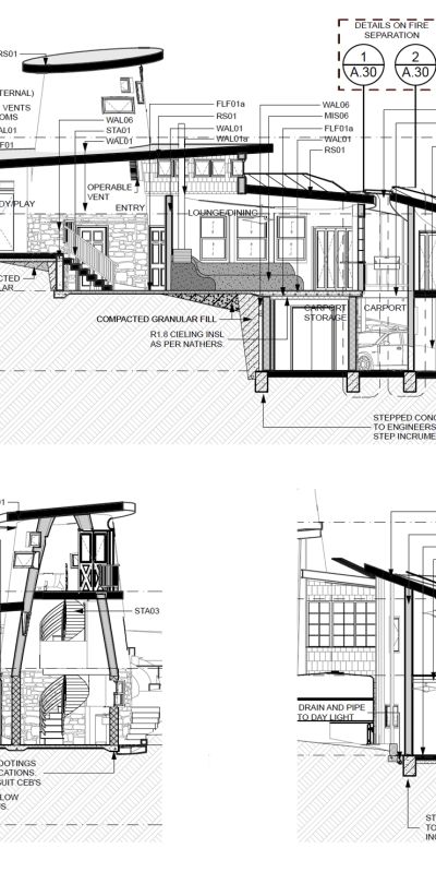
The project is composed beautifully on the sloping block with the bean shaped main house at the top end and a circular granny flat at the lower end. The two buildings are joined by a central deck where family life, meals and distant views can be enjoyed. Step inside, and you'll find curving walls that artfully capture and play with natural light, enveloping you in a warm and inviting atmosphere, further reinforcing a cosy feeling of home.

The project uses reclaimed hardwood timber from the structural components to the finishing details. We just love the locally found branches used to form the arched doorway and feature wall motif, a true testament to the beauty of nature integrated into design.

The external walls are formed using light straw clay, finished internally with an earthen render and externally with a lime render for durability. Light straw clay is much like hempcrete only it uses local clay as a binder and straw as an insulative fiber. The internal walls are formed using a more earth rich mix known as cob, again finished with an earthen render. Insulated by the external straw walls, these heavy internal walls combined with the beautiful earth floor provide thermal mass. This thermal mass insulated by the external straw walls will gently regulate the internal temperature, ensuring a cozy and comfortable atmosphere year-round.

It’s clear that designing and building with natural materials not only looks good but feels good, inspiring creativity and sustainable building.

drawings

photos